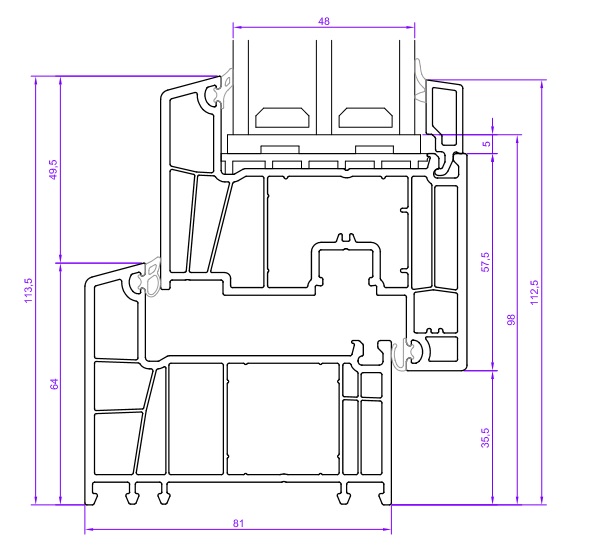
Pasiv 6

Podobné profilu Pasiv 7, jen bez třetího těsnění a se šesti komorami. Ekonomičtější varianta se skvělými parametry,  těžko hledá konkurenci poměrem cena/výkon. Rozumná volba do nízkoenergetických novostaveb, rekonstrukcí, do kvalitně zateplených panelových domů a bytů. 

6
Komor
80mm
Stavební hloubka
až 0.84
U W ( W/m2K )
2
Těsnění
CL
6
Komor
80mm
Stavební hloubka
až 0.84
U W ( W/m2K )
2
Těsnění

Popis

  • 6-komorová konstrukce
  • stavební hloubka 80mm
  • pozinkovaná ocelová výztuha
  • bezpečnostní prvky ve standardu
  • u otevíravo-sklopného okna standardně blokace kliky proti chybné manipulaci (okno nevypadne)
  • jádro profilu může být bílé, hnědé, karamelové, nebo antracitové
  • dvě dorazová těsnění
  • zasklení dvojsklem, nebo trojsklem (do šířky 55mm)
  • dostupné s rovným křídlem
  • klasické nebo skryté panty

 

Realizace

rekonstrukce bývalé školy, profil Pasiv 6 byl skvělým řešením požadavků investora - cena/výkon

děláme i oblouková a nebo jiná atypická okna

 

Bezpečnost

Bezpečnost ve standardu:

  • pojistka chybné polohy kliky (brání vypadnutí křídla)(obr.1)
  • uzavírací body s regulací přítlaku
  • vnitřní středový přítlak otevíravého křídla
  • dva až čtyři bezpečnostní body(obr.2) na křídle ztěžující vloupání

(obr.1)                                                                                             (obr.2)

 

Lze přiobjednat:

  • bezpečnostní skla connex P2A, P4A a jiná  
  • kování bezpečnostní třídy RC1 (WK1) a RC2 (WK2)
  • bezpečnostní klika s blokovacím mechanismem
  • uzamykatelná klika, nebo klika s tlačítkem    
  • magnetický bezpečnostní systém integrovaný v okně napojitelný na alarm (MACO Tronic)
  • destička proti odvrtání kliky (1mm kalená ocel)

 

Vzhled

rovné křídlo

profil s hliníkovým opláštěním ALUSKIN

 

 

Zasklení

Dvojsklo


Ug až 1.0 ( W/m2K )

meziskelní prostor je vyplněn argonem.

lze použít teplý distanční rámeček Swisspacer Ultimate

Trojsklo


Ug až 0.7-0.5 ( W/m2K )

meziskelní prostor je vyplněn argonem.

lze použít teplý distanční rámeček Swisspacer Ultimate

Zvukově izolační sklo



hodnota součinitele vzduchové neprůzvučnosti zvukově izolačních skel je n až do Rw = 51 dB

Bezpečnostní sklo


ESG kalené skla

VSG laminované skla odolnost P1A až P8B

Protisluneční sklo

 

absorpční skla

selektivní skla

reflexní skla

možnost omezení tepla, světla, nebo světla i tepla pronikajícího dovnitř budovy.

 

 

Ornamentní skla

Fotografie silvit_original.jpg Kůra Fotografie master-carre_original.jpg Mastercare Fotografie delta-mat_original.jpg Delta mat Fotografie grepi_original.jpg Grepi Fotografie chinchilla-bila_original.jpg Chinchilla Fotografie delta_original.jpg Delta Fotografie kura-bila_original.jpg Kůra Fotografie kathedral_original.jpg Kathedral

 

Dekorativní skla

Matné sklo. Pomocí technologie pískování je možné na průhledném nebo ve probarveném skle vytvořit také vzor EkoVitre.

Ornamentální sklo je poloprůhledné bezbarvé nebo probarvené sklo. Podle zvoleného vzoru je průhlednost skla nižší, nebo vyšší, což zaručuje soukromí při současném prosvětlení prostoru.

 

Požární skla

Požární skla dostupná s třídou požární odolnosti EI30 (tl. 20 mm), nebo EI60 (tl. 25 mm). Požární sklo tvoří tabule kaleného skla, mezi nimiž je bezbarvý hydrogel. Požární sklo je možné doplnit distančním rámečkem a standardním sklem a vytvořit tak izolační sklo různé tloušťky s protipožárními vlastnostmi.

 

Protihluková skla

Nabízíme různá řešení, která umožňují zvýšení akustické pohody v interiérech.

  • hodnota součinitele vzduchové neprůzvučnosti zvukově izolačních skel je až Rw = 51 dB,
  • nabídka izolačních skel se zvýšenou hodnotou součinitele vzduchové neprůzvučnosti je velká, například od (např. 6/16Ar/4th ,do  66.1th Si/14Ar/4/14Ar/44.1th Si )

 

Bezpečnostní skla

Sklo VSG (laminované bezpečnostní sklo), účinně snižuje riziko vloupání. Pokud dojde k rozbití skla, zůstanou jeho zbytky nalepeny na fólii, díky čemuž bude omezeno nebezpečí, že dojde ke zranění osob. Polyvinylbutyralová (PVB) fólie znesnadňuje proražení skla.

Nabízíme bezpečnostní skla, která splňují normu EN 356 s PVB fóliemi, jež mohou dosahovat odolnosti P1A až P8B.

Sklo ESG (kalené/tvrzené bezpečnostní sklo). Vyznačuje se zvýšenou odolností proti rozbití. V případě rozbití se sklo rozpadne na malé kousky s tupými hranami(podobně jakou autosklo).

  • tloušťky skleněných tabulí ESG: 4, 6, 8 a 10 mm,
  • tloušťky skleněných tabulí VSG: 6,38 mm - 28 mm
  • v závislosti na požadavcích mohou splňovat určité bezpečnostní podmínky v souladu s normami EN 356 a EN 12600,
  • lze samozřejmě vyrobit jako izolační sklo (například VSG 33.2-16-4-16-4 argon)

 

Protisluneční skla

Skla, která omezují pronikání slunečního světla a energie do interiérů. Nabízená jsou skla se selektivní, absorpční nebo reflexní charakteristikou.

Selektivní sklo (Planistar, Cool-Lite) omezuje pronikání sluneční energie do budovy, při zachování vysoké světelné propustnosti. Použitím protislunečního selektivního skla se jednoduše interiér budovy tolik nepřehřívá.

Absorpční sklo (Planibel) je probarveno ve hmotě hnědou, šedou, zelenou nebo modrou barvou. Absorbuje sluneční paprsky, a omezuje světelnou prostupnost a zároveň omezuje pronikání sluneční energie do budovy. Z podstaty omezuje světelnou propustnost.

Reflexní sklo (zrcadlové sklo - Stopsol, Antisol) je probarveno ve hmotě hnědou, šedou, zelenou nebo modrou barvou. Sklo je pokryto vrstvou oxidu kovu - paprsky se odrážejí od jeho povrchu a vzniká tak zrcadlový efekt. Použitím reflexního skla lze omezit pronikání sluneční energie do budovy. Často se používá i jako designové zasklení

 

Dekorativní mřížky a rámečky

 

meziskelní mřížka (šířky 8, 18, 26 a 45mm)

nalepovací mřížka (šířky 26, 46, 66mm)

 

Distanční rámečky

Standardní rámeček - hliník, nerez

 

Swisspacer Ultimate

  • dostupné šířky jsou 6-24 mm,
  • lineární činitel prostupu tepla Ψ = 0,03 W/(mK)
  • z kompozitního materiálu
  • je dostupný v šesti barvách

Swisspacer Ultimate dosahuje skvělého součinitele Ψ = 0,03 W/(mK)

  • omezení kondenzace vodní páry na okrajích skla
  • podstatné snížení hodnoty součinitele prostupu tepla celého okna. 

Barvy meziskelních mřížek

Fotografie swis-ral9016_original.jpg Swisspacer Ultimate bílá Fotografie swis-ral9005_original.jpg Swisspacer Ultimate RAL 9005 Fotografie swis-ral8016_original.jpg Swisspacer Ultimate RAL 8016 Fotografie swis-ral8003_original.jpg Swisspacer Ultimate RAL 8003 Fotografie swis-ral7040_original.jpg Swisspacer Ultimate RAL 7040 Fotografie swis-ral7035_original.jpg Swisspacer Ultimate RAL 7035

Doplňky

Větrací klapky

Větrací prvek, který umožňuje průtok vzduchu při zavřeném okně. Nevyžaduje manuální nastavení díky čidlu v podobě polyamidové pásky. Regulace průtoku vzduchu závisí na obsahu vodní páry v místnosti. Nevyžaduje elektrické napájení. Používá se například do místností s plynovým spotřebičem, nebu všude tam, kde je zvýšená potřeba úsporného větrání.

  • hygroregulační ovládání
  • Propustnost vzduchu: od 5 do 29 m³/h
  • Akustická izolace v otevřené poloze = 38 dB
  • Ochrana proti hmyzu

galerie klapek Aereco

Fotografie aereco-bila_original.jpg Klapka Aerecco bílá Fotografie aereco-seda_original.jpg Klapka Aerecco šedá Fotografie aereco-karamel_original.jpg Klapka Aerecco karamel Fotografie aereco-bronz_original.jpg Klapka Aerecco hnědá Fotografie aereco-antracit_original.jpg Klapka Aerecco antracit

 

Krytky okenních pantů

barvy:

  • bílá
  • zlatá
  • bronzová
  • stříbrná
  • golden look
  • titanová
  • krémová

 

 

Cenu přímo na míru

Uděláme Vám cenu přímo na míru. Použijte naši vylepšenou poptávku.

NEZÁVAZNÁ POPTÁVKA
Potřebujete poradit?